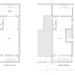
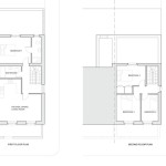
Spitalfields Townhouse
The extension and remodelling of a Grade II listed Georgian townhouse to provide two commercial units at basement and ground floor level and a four bedroom flat above.
Fundamental to the project was the conservation and refurbishment of existing period features whilst ensuring that new additions were congruous to the existing. Works include the reintroduction of a staircase to the basement with cast iron railings and a traditional shop front. The rear extension retains original fenestration proportions above ground level yet incorporates bi-folding doors below to significantly improve the amount of daylight at basement level.
